Grundrisspläne für Baueingaben und Projekte
Ein professioneller Grundrissplan bildet die Basis für jede Phase eines Bauvorhabens – von der Entwurfsplanung bis zur Baueingabe. Für Immobilienfirmen, Architekten und Bauherren ist ein sauber strukturierter und normgerechter Plan essenziell, um Entscheidungen zu treffen und Anforderungen von Behörden zu erfüllen. Archify unterstützt Sie bei der zeichnerischen Erstellung von Grundrissplänen in verschiedenen Massstäben – inklusive Flächenberechnung, Massangaben, Schraffuren und Legenden. Die Pläne werden präzise nach SIA 400 gefertigt und digital in Ihrem Wunschformat geliefert.
Von der Skizze zum 3D Grundrissplan – wir machen es möglich!




Grundrissplan zeichen: das bieten wir
- Grundrisspläne für Vorprojekt, Baueingabe oder Ausführung
- Erstellung nach SIA-Normen (z. B. SIA 400)
- Massstabsgerechte Darstellung in CAD
- PDF-, JPG oder DWG-Dateien für Ihre Weiterverwendung
Grundrisspläne für Baueingaben und Projekte
Insbesondere für Baugesuche oder Planänderungen müssen Grundrisspläne bestimmten kantonalen Anforderungen entsprechen. Wir übernehmen für Sie die saubere und formgerechte Erstellung von Baueingabeplänen – inklusive aller notwendigen bautechnischen Abklärungen. Damit vermeiden Sie Rückfragen seitens der Baubehörden und sparen Zeit im Genehmigungsprozess.
3D Grundriss: Ihre Idee ist unser Plan
In enger Zusammenarbeit erstellen wir gemeinsam mit unseren Kunden eine detaillierten und professionellen 3D Grundrissplan. Damit stellen wir sicher, dass wir genau die Atmosphäre schaffen, die Sie möchten. Wollen Sie Ihrer Immobilie eher einen modern-minimalistischen Look oder soll es doch lieber ein Hauch von Luxus sein?

Besonders neue Bauprojekte profitieren von 3D Grundrissplänen. Diese verleihen dem Projekt eine neue Dimension und machen das Projekt automatisch verständlicher und ansprechender. Mit einem 3D Grundriss können Sie die Vorteile der Immobilie hervorheben und sein Potential zeigen.
Haben wir Ihr Interesse geweckt?
Dann rufen Sie uns unter 031 311 44 55 an oder senden Sie uns vorab Ihre Grundlagen per E-Mail an info@archify.ch zu. Nach einem Erstgespräch und Erhalt vorhandener Pläne, Dateien oder Skizzen, unterbreiten wir Ihnen umgehend unser Festpreis-Angebot. Sowohl die Offerte als auch die Erstberatung sind bei Archify kostenlos.
Wofür wird ein Grundrissplan gebraucht?
- Baugesuch einreichen
- Immobilien vermarkten
- Projekt planen oder umbauen
- Wohnfläche berechnen
Mit digitalen Grundrissen können wir noch mehr für Sie tun
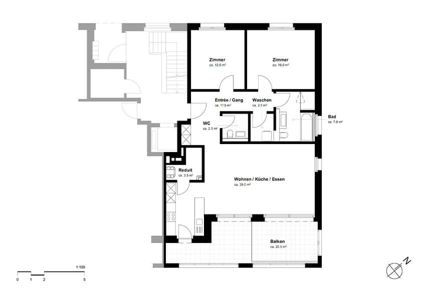
STOWE-Pläne
Stockwerkeigentums-Pläne bilden die Grundlage für die Begründung einer Stockwerkseigentümerschaft. Sie enthalten detaillierte Darstellungen der einzelnen Nutzflächen und bieten eine klare Aufteilung der Räume, die für die rechtliche und technische Abwicklung erforderlich sind.
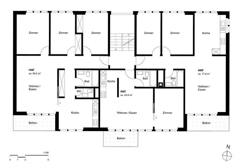
Vermietungspläne
Für eine effiziente Verwaltung Ihrer Immobilien liefern wir Ihnen präzise Vermietungspläne. Diese Pläne bieten eine transparente Übersicht, die sowohl für Vermieter als auch für Mieter hilfreich ist und Ihnen bei der Verwaltung Ihrer Objekte Zeit und Aufwand spart.
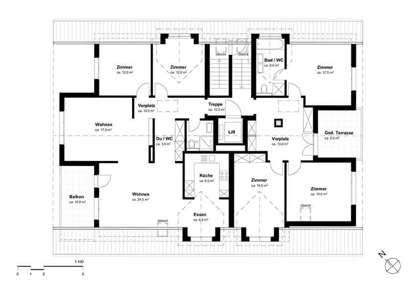
Verkaufspläne
Mit unseren Verkaufsplänen unterstützen wir Sie dabei, Ihre Immobilien professionell zu präsentieren. Wir erstellen Vermarktungspläne, die potenziellen Käufern eine klare Vorstellung vom Objekt vermitteln und Ihnen helfen, den Verkaufsprozess zu optimieren.
Grundriss | Grundriss Haus | Grundriss Einfamilienhaus | Grundriss Wohnung